襯膠閥門

GJ941X電動夾管閥
GJ941X-6L 電動夾管閥又名電動夾管閥,電動膠管閥由上下鑄鐵、鋁合金、免费看片91閥體,橡膠管套、大小閥杆閘板、上下導柱等零件組成。當順轉手輪時,使大小閥杆同時帶動上下茬板、壓縮管套、進行關閉,反之即行開啟。
GJ941X電動夾管閥產品概述:
GJ941X-6L 電動夾管閥又名電動夾管閥,電動膠管閥由上下鑄鐵、鋁合金、免费看片91閥體,橡膠管套、大小閥杆閘板、上下導柱等零件組成。當順轉手輪時,使大小閥杆同時帶動上下茬板、壓縮管套、進行關閉,反之即行開啟。這樣,閘板在導柱之間上下往複完成閥門開閉工作,另因橡膠管套或承力小,所以在開閉時,操作人員旋轉輪時隻要感到適量抵觸,均達到開閉極點。切勿盡力多人補助,禁用其他工具開閉。
GJ941X電動夾管閥性能規範:
| 適用溫度 | 適用介質 |
| ≤85℃ | 礦漿、磨料、幹濕型粉塵類 |
GJ941X電動夾管閥主要零件材料:
| 名稱 | 材料 |
| 閥體 | 鋁合金、鑄鐵、鑄鋼 |
| 套管 | 橡膠 |
| 閥杆 | 鑄銅、碳鋼 |
| 壓杆 | 球墨鑄鐵 |
| 電動頭 | 組合件 |
| 托架 | 球墨鑄鐵 |
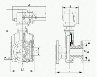
GJ941X電動夾管閥主要外形尺寸:

| 公稱 | 公稱 | 工作 | L | L1 | L0 | D | D1 | Z-Φ | H | 電動裝置 | ||||
| 通徑 | 壓力 | 壓力 | 型號 | A | B | D0 | kw | |||||||
| (DN) | (MPa) | (MPa) | ||||||||||||
| 25 | 0.6 | 0.6 | 160 | 124 | 31 | 115 | 85 | 4-14 | ZA5-14 | 443 | 133 | 0.12 | ||
| 32 | 165 | 145 | 40 | *140 | 100 | 4-18 | ||||||||
| 40 | 190 | 157 | 50 | *150 | 110 | 4-18 | ||||||||
| 50 | 210 | 160 | 60 | 160 | 125 | 4-18 | ZA10-18 | 552 | 425 | 0.25 | ||||
| 65 | 250 | 199 | 74 | 180 | 145 | 4-18 | ZA15-15 | 552 | 425 | 305 | 0.37 | |||
| 80 | 300 | 222 | 88 | 195 | 160 | 4-18 | ZA30-18 | 552 | 425 | 305 | 0.75 | |||
| 100 | 350 | 250 | 106 | 215 | 180 | 8-18 | ZA30-18 | 552 | 425 | 305 | 0.75 | |||
| 125 | 430 | 318 | 134 | 245 | 210 | 8-18 | 305 | |||||||
| 150 | 500 | 350 | 158 | 280 | 240 | 8-23 | 1000 | |||||||
| 200 | 0.4 | 0.4 | 650 | 446 | 206 | 335 | 295 | 8-23 | 1174 | ZA14-18 | 766 | 390 | 305 | 1.1 |
| 250 | 800 | 516 | 256 | *395 | 350 | 12-23 | ||||||||
| 300 | 950 | 562 | 304 | *445 | 400 | 12-23 | ||||||||
| 采用標準設計與製造:Q/JBGN02 結構長度:Q/JBGN02 法蘭連接尺寸:JB78(PN1.0MPa) | ||||||||||||||
相關產品


