免费看片91球閥

免费看片91夾套保溫球閥


BQ41PPL-16P 免费看片91夾套保溫球閥是我公司為滿足客戶特殊工況需要在一體式保溫球閥基礎上開發的新型保溫球閥,具有保溫、保冷特性。該閥根據用戶需要在夾套注入蒸氣、導熱油、冷卻水、冷氣等。

BQ41PPL/F 免费看片91夾套保溫球閥產品概述:

BQ41PPL-16P 免费看片91夾套保溫球閥是我公司為滿足客戶特殊工況需要在一體式保溫球閥基礎上開發的新型保溫球閥,具有保溫、保冷特性。該閥根據用戶需要在夾套注入蒸氣、導熱油、冷卻水、冷氣等,從而使整個閥門在常溫或降溫時達到所需要的溫度,防止介質結晶,其相比普通一體式保溫球閥最大的特點是采用連接口尺寸比安裝管道要小的縮徑型設計,本產品有法蘭加大型和不加大型兩種連接尺寸標準。保溫球閥主要用於石油、化工、冶金、製藥、食品等各類係統中,以輸送常溫下會凝固的高粘度介質。

BQ41PPL/F免费看片91夾套保溫球閥產品特點:

①保溫球閥具有良好的保溫、保冷特性,主要用於石油、化工、冶金、製藥等係統,以輸送常溫下會凝固的高粘度介質。
②保溫球閥的保溫夾套內可通入保溫介質,一般采用導熱油或水蒸氣作為保溫介質。
③浮動球閥旋轉90°即可全關全開,啟閉迅速。與相同規格的閘閥、截止閥比較、球閥體積小、重量輕,便於管道安裝。
④在各種閥門中,球閥的流動阻力最小,全徑球閥打開時,球體通道、閥體通道和連接管徑相等並成一直徑,介質幾乎可以毫無損失的流過
⑤保溫球閥的結構簡單,結構緊湊,密封性能好,密封麵與球閥常在閉合狀態,不易被介質衝蝕,適用於水、溶劑、酸和天然氣等一般工業介質,也適用於工作條件相對惡劣的介質,如氧氣、過氧化氫、甲烷和乙烯等介質。

BQ41PPL/F免费看片91夾套保溫球閥技術規範:

①設計與製造標準按GB12237標準
②結構長度標準按GB/T 12221標準
③連接法蘭標準按JB79、HG/T 20592、GB/T 9113標準
④試驗與檢驗標準按GB13927 GB/T 26480標準

BQ41PPL/F 免费看片91夾套保溫球閥主要零件部件材料表:


序號

零件名稱

材料名稱

1

閥體

WCB

CF8(304)

CF3(304L)

CF8M(316)

CF3M(316L)

2

球體

2Cr13

0Cr18Ni9

00Cr19Nill

0Cr17Ni12Mo2

0Cr17Ni12Mo2

3

閥杆

2Cr13

0Cr18Ni9

00Cr19Nill

0Cr17Ni12Mo2

0Cr17Ni12Mo2

4

夾套

WCB

CF8(304)

CF3(304L)

CF8M(316)

CF3M(316L)

5

密封圈

聚四氟乙烯、對位聚笨

6

填料

V型聚四氟乙烯、柔性石墨環、聚四氟乙烯片、柔性石墨複合墊

7

墊圈

V型聚四氟乙烯、柔性石墨環、聚四氟乙烯片、柔性石墨複合墊

適用溫度 

-28~300℃


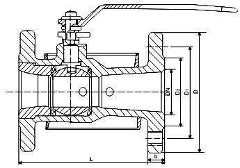
BQ41PPL/F免费看片91夾套保溫球閥主要外型尺寸表:




公稱壓力
PN(Mpa)

公稱通徑
DN(mm)

尺寸(mm)

L

D

D1

D2


Z-Φd

1.6

15

95

95

65

45

14

4-Φ14

20

105

105

75

55

14

4-Φ14

25

160

115

85

65

14

4-Φ14

32

165/200

135

100

78

16

4-Φ18

40

180/205

145

110

85

16

4-Φ18

50

200/220

160

125

100

16

4-Φ18

65

220

180

145

120

18

4-Φ18

80

250

195

160

135

20

8-Φ18

100

280

215

180

155

20

8-Φ18

125

320

245

210

185

22

8-Φ18

150

360

280

240

210

26

4-Φ23

備注

此為法蘭不加大型連接尺寸

1.6

15

95

105

75

55

14

4-Φ14

20

105

115

85

65

14

4-Φ14

25

160

135

100

78

16

4-Φ18

32

165/200

145

110

85

16

4-Φ18

40

180/205

160

125

100

16

4-Φ18

50

200/220

180

145

120

18

4-Φ18

65

220

195

160

135

20

8-Φ18

80

250

215

180

155

20

8-Φ18

100

280

245

210

185

22

8-Φ18

125

320

280

240

210

24

8-Φ23

150

360

335

295

265

26

8-Φ23

200

400

405

355

320

30

12-Φ25

備注

此為法蘭加大型連接尺寸


相關產品

購買免费看片下载閥門合作流程

免費谘詢

提供選型

簽訂合同

安排訂貨

物流配送

保修一年

網站地圖